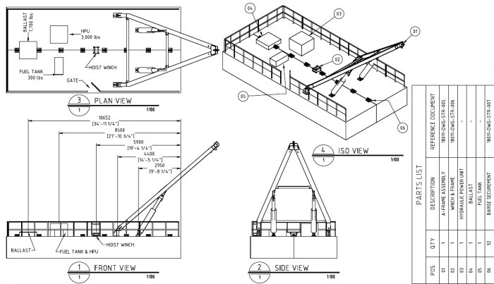
Headwall Engineering was pleased to help a dredging client with the design of a 5 metric tonne capacity crane for harbour operation. The crane, designed to be mounted on modular barges, will help our client place and remove anchors to restrain marine booms.
Headwall Engineering provided the conceptual, detailed, and final engineering designs for the crane, including full shop drawings and fabrication support for this project. Designs were completed in accordance with DNVGL-ST-0377, CSA S16 & CSA W59.


